Широкий спектр предложений для вашего бизнеса

Аренда

Помещения свободного назначения

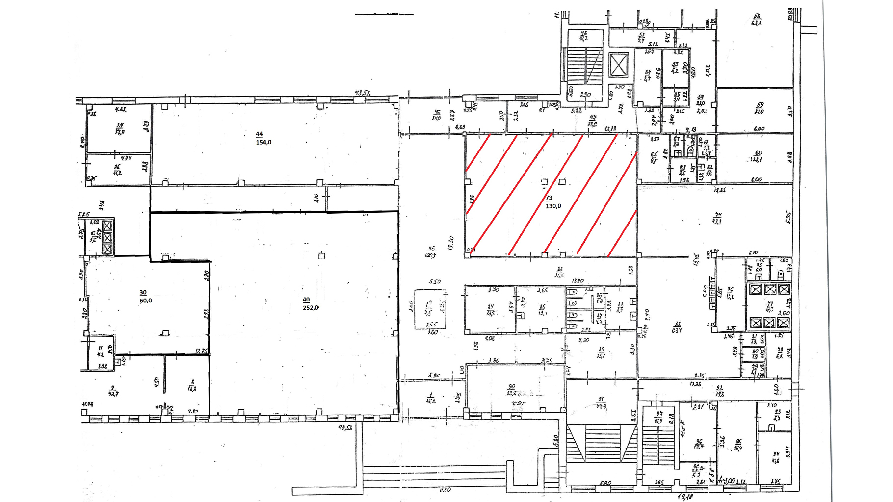
Площадь м2: 130.0
Стоимость ₽: 62 400
Цена за м2 в год: 5 760

Поделиться

Предлагается в аренду помещение свободного назначения общей площадью 130 м2, на территории Индустриального парка "ЭЛМА-М9". Идeaльно подойдет под офис, конференц-зал, фотостудию, легкое производство и пр. Вход в помещение  с центральной проходной.
  • Паpковочнaя зoна для легковыx а/м окoлo вхoда
  • Видеонаблюдение, 
  • Доступ в помещение 24/7
  • СКУД
  • Возможность перепланировки помещения по согласованию
Hа площадке действует пропускной режим, видеонаблюдение.

В помещении выполнена качественная отделка:
  • Высота потолков - 3 м.
  • Потолки, стены - окрашены
  • Пол - керамогранитная плитка
  • Теплоснабжение от собственной котельной.
Возможен индивидуальный подбор услуг: Профессиональный клининг, охраняемая парковка на территории, высокоскоростной интернет, телефония. 

На территории комплекса:

  • Столовая
  • Банкомат

Удобное транспортное расположение:  

  • 1-я линия Зубцовского шоссе
  • 100 м. до остановки общественного транспорта
  • М9 "Балтия"

Индустриальный парк "ЭЛМА-М9" - это комплекс зданий на территории более 16 гектаров. Помещения различного назначения - офисные, производственные и складские.

Часть производственно-складских помещений оборудована специализированным оборудованием.

Кабинетная планировка в офисном здании. Часть помещений меблирована, с отделкой. Помещения оборудованы кондиционерами, обеспечены телефонией и интернет соединением

  • Режим работы Индустриального парка "ЭЛМА-М9" - 24/7.
  • На территории комплекса осуществляется круглосуточная охрана: КПП, огороженная территория, охрана по периметру.
  • На объекте расположена столовая, вендинговые и кофе аппараты.
На территории комплекса находится собственная котельная 10 МВт.

Инфраструктура Объекта

icon

Трассе М9 «Балтия»

icon

2 АЗС в 100 м. от объекта

icon

Автобусные остановки

icon

Столовая на территории

icon

Собственная котельная

icon

БАНКОМАТЫ И ТЕРМИНАЛЫ

Менеджеры

manager-photo manager-photo
Некраш Анна

Ведущий менеджер по аренде объекта «ЭЛМА-М9»

Телефон: +7 (999) 502-67-74
+7 (499) 286-33-33, доб. 449
E-mail: a.nekrash@elmagroup.ru Связаться

Звоните в наш колл-центр и наши ведущие менеджеры помогут вам с поиском офиса, площадей под производство или склад.

С понедельника по пятницу с 9 до 18 мск.

Заявка на звонок

Я даю своё согласие на обработку персональных данных.
Звоните в наш колл-центр и наши ведущие менеджеры помогут вам с поиском офиса, площади под производство или склад. +7 (499) 286-33-33 С понедельника по пятницу с 9 до 18 мск.
Записаться на просмотр
Я даю своё согласие на обработку персональных данных.
Сейчас операторы не в сети.
Введите свой номер телефона и удобное для Вас время звонка.
Я даю своё согласие на обработку персональных данных.
Записаться на просмотр
Я даю своё согласие на обработку персональных данных.

Личный кабинет

Регистрация
Войти как пользователь
Вы можете войти на сайт, если вы зарегистрированы на одном из этих сервисов: